Property
Beds
5
Full Baths
3
1/2 Baths
None
Year Built
1992
Sq.Footage
2,689
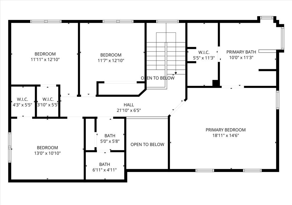
There is so much to love about this great home. Great location--cul de sac, close to Stovall Park, great schools, convenient location for commutes...And the home itself...plenty of space for all sizes of families. 5 bedrooms, including a bedroom down with a full bath. Generously sized primary bedroom upstairs, with a light filled ensuite bath with a garden tub and separate shower. The other 3 upstairs bedrooms are also generously sized and offer great closet space. Downstairs, the kitchen will be the heart of the home--plenty of space for the cook to enjoy, with room for an eat in dining table or an island workspace. TWO pantries provide lots of storage, and the corner nook can be used in multiple ways. There's also under the stairs storage (although the seller's littles used that as a play space--easy way to keep an eye on them while working in the kitchen...and there is a door to close it off if desired). The dining room can accomodate a large table for gatherings, but could also be used as office space or 2nd living if that suits your needs better. The living room is oversized, and includes an offset area with a large closet, providing additional options for use. Nice shady backyard with a covered deck, great for those warmer months that are coming! Kitchen range replaced 2025, dishwasher 2024, water heater 2022, AC condensors 2020 & 2022, roof 2019. Fresh paint in upstairs secondary bedrooms, brand new vanity in downstairs bathroom, and the seller is offering a carpet allowance for the downstairs bedroom. Come take a look, this could be the one you've been waiting for!
Features & Amenities
Interior
-
Other Interior Features
Eat-in Kitchen, Granite Counters, Pantry, Walk-In Closet(s)
-
Total Bedrooms
5
-
Bathrooms
3
-
Basement YN
NO
-
Cooling YN
YES
-
Cooling
Ceiling Fan(s), Central Air, Electric
-
Fireplace YN
YES
-
Heating YN
YES
-
Heating
Central, Electric
-
Pet friendly
N/A
Exterior
-
Garage
Yes
-
Garage spaces
2
-
Construction Materials
Brick
-
Parking
Garage Door Opener, Garage Faces Front, Attached
-
Patio and Porch Features
Covered, Deck
-
Pool
No
-
Waterfront YN
NO
Area & Lot
-
Lot Features
Cul-De-Sac, Few Trees, Interior Lot, Subdivided
-
Lot Size(acres)
0.185
-
Property Type
Residential
-
Property Sub Type
Single Family Residence
-
Architectural Style
Traditional
Price
-
Sales Price
$400,000
-
Sq. Footage
2, 689
-
Price/SqFt
$148
HOA
-
Association
No
School District
-
Elementary School
Wood
-
Middle School
Boles
-
High School
Martin
Property Features
-
Foundation Details
Slab
-
Sewer
Public Sewer
-
Water Source
Public
Schedule a Showing
Showing scheduled successfully.
Mortgage calculator
Estimate your monthly mortgage payment, including the principal and interest, property taxes, and HOA. Adjust the values to generate a more accurate rate.
Your payment
Principal and Interest:
$
Property taxes:
$
HOA fees:
$
Total loan payment:
$
Total interest amount:
$
Location
County
Tarrant
Elementary School
Wood
Middle School
Boles
High School
Martin
Listing Courtesy of Judy Shoemaker , Mark Cabal Realty
RealHub Information is provided exclusively for consumers' personal, non-commercial use, and it may not be used for any purpose other than to identify prospective properties consumers may be interested in purchasing. All information deemed reliable but not guaranteed and should be independently verified. All properties are subject to prior sale, change or withdrawal. RealHub website owner shall not be responsible for any typographical errors, misinformation, misprints and shall be held totally harmless.
Office and Team Coordinator
Mhamer Sas
Call Mhamer today to schedule a private showing.
* Listings on this website come from the FMLS IDX Compilation and may be held by brokerage firms other than the owner of this website. The listing brokerage is identified in any listing details. Information is deemed reliable but is not guaranteed. If you believe any FMLS listing contains material that infringes your copyrighted work please click here to review our DMCA policy and learn how to submit a takedown request.© 2024 FMLS.