Features & Amenities

Interior

  • Other Interior Features

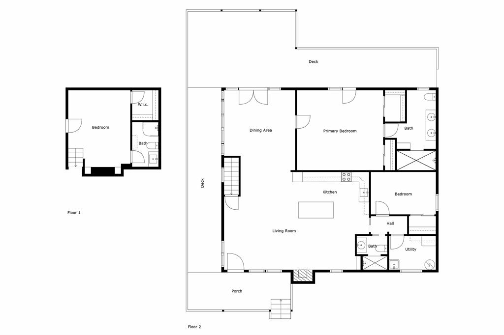
    Built-in Features, Double Vanity, Dry Bar, Eat-in Kitchen, Kitchen Island, Natural Woodwork, Open Floorplan, Pantry, Vaulted Ceiling(s), Walk-In Closet(s), High Speed Internet, In-Law Floorplan

  • Total Bedrooms

    3

  • Bathrooms

    3

  • Basement YN

    NO

  • Cooling YN

    YES

  • Cooling

    Ceiling Fan(s), Central Air, Electric

  • Fireplace YN

    YES

  • Heating YN

    YES

  • Heating

    Exhaust Fan, Central, Electric

  • Pet friendly

    N/A

Exterior

  • Garage

    No

  • Construction Materials

    Wood Siding

  • Other Exterior Features

    Fire Pit, Rain Gutters, Lighting, Storage

  • Parking

    Additional Parking, Concrete, Driveway, Gravel, Lighted, No Garage

  • Patio and Porch Features

    Deck, Covered

  • Pool

    No

  • Waterfront YN

    NO

Area & Lot

  • Lot Features

    Cleared, Wooded, Landscaped, Many Trees

  • Lot Size(acres)

    0.31

  • Property Type

    Residential

  • Property Sub Type

    Single Family Residence

  • Architectural Style

    Contemporary/Modern

Price

  • Sales Price

    $520,000

  • Tax Amount

    $3,936

  • Sq. Footage

    1, 720

  • Price/SqFt

    $302

HOA

  • Association

    Yes

  • Association Fee

    $100

  • Association Fee Frequency

    Annually

  • Association Fee Includes

    N/A

School District

  • Elementary School

    Pottsboro

  • Middle School

    Pottsboro

  • High School

    Pottsboro

Property Features

  • Foundation Details

    Pillar/Post/Pier

  • Sewer

    Septic Tank

  • Tax Lot

    28

Schedule a Showing

Showing scheduled successfully.

<
>
IN PERSON
VIA CHAT

What is 3 + 4 ?


Change time

Mortgage calculator

Estimate your monthly mortgage payment, including the principal and interest, property taxes, and HOA. Adjust the values to generate a more accurate rate.

Your payment

Principal and Interest:

$

Property taxes:

$

HOA fees:

$

Total loan payment:

$

Total interest amount:

$

Location

County

Grayson

Elementary School

Pottsboro

Middle School

Pottsboro

High School

Pottsboro

Listing Courtesy of Layla Fain , Easy Life Realty

RealHub Information is provided exclusively for consumers' personal, non-commercial use, and it may not be used for any purpose other than to identify prospective properties consumers may be interested in purchasing. All information deemed reliable but not guaranteed and should be independently verified. All properties are subject to prior sale, change or withdrawal. RealHub website owner shall not be responsible for any typographical errors, misinformation, misprints and shall be held totally harmless.

Agent Mhamer Sas

Office and Team Coordinator

Mhamer Sas

Call Mhamer today to schedule a private showing.


* Listings on this website come from the FMLS IDX Compilation and may be held by brokerage firms other than the owner of this website. The listing brokerage is identified in any listing details. Information is deemed reliable but is not guaranteed. If you believe any FMLS listing contains material that infringes your copyrighted work please click here to review our DMCA policy and learn how to submit a takedown request.© 2024 FMLS.
Welcome to this stunning, modern masterpiece, meticulously remodeled from the ground up & situated in a charming golf-cart Lake Texoma community. This turn-key property offers access to a boat ramp & courtesy dock, blending convenience with luxurious lake living. Step inside to an open floor plan with new luxury vinyl flooring & a beautifully redesigned kitchen featuring sleek quartz countertops. Warm wood ceilings & a cozy fireplace create an inviting atmosphere, while a private Mother-in-Law suite—with its own entrance—adds flexibility for guests & family. The fully remodeled home boasts fresh paint, new roof, completed foundation work, a fully remodeled interior and exterior and much more. Outside, enjoy a partially covered private deck with serene views of the partially wooded side yard. The low-maintenance landscaping includes ample parking, elegant lighting, towering flowering Crape Myrtles and a new fire-pit area for evening gatherings. Plus, there's generous storage under the house, perfect for all your lake toys. This caliber of lake property is a rare find—don’t miss out on this exceptional opportunity!

491 Black Forest Drive

Message successfully sent.

What would you like to know?

What is 3 + 4 ?

Related Properties

Lake Texoma Getaway!  This home has been updated and renovated with added front and side covered porches, back concrete and wood decks for incredible outdoor entertaining.  Circle drive, with home sitting on 1.26 acres.  Wooded lot, aggregate drive, and excess parking for boats and RVs. 
Renovated baths, and kitchen with updated appliances.  Views of the property from every room. New pitched composition roof and new covered porch architecture. HVAC in main house, updated to an all electric central system, with a mini split in the guest house.  The storage building at front of the property has a window unit in place and can be used as a workshop. Home has 2 hot water heaters. The guest house is 12X20 with a covered front porch and plenty of space to accomodate a bunk room for extra sleeping arrangements. Guest house has a built in desk for detached office area if you choose. Plenty of room to set up as an additional living space.  Come see this Jewel in the Woods of Lake Texoma.
#21006721

Pottsboro

152 Homesite Road

2 Beds

2 Baths

1,077 Sq.Ft.

$439,900

MLS#: 21006721

This TURNKEY Lake Texoma resort style STONE RETREAT provides you a large SHOP for parking your RV indoors.  Designing WELLNESS was the decorator's goal in styling this rustic, one-of-a-kind lake property with high-end furnishings.  Look far and wide...you will be challenged to find another property as special as 236 Homesite.  Sited on 1.24 manicured, fenced acres with gated entry, with many activities available to guests;  flagstone walkway leads to large flagstone firepit, relax in your outdoor hot tub perfectly located in a screened area, expansive wraparound deck, shed, outdoor shower, extra spacious, 1470 sq ft, boat and RV storage with room for lake toys, multiple outdoor entertainment areas for swinging, playing horseshoes or cornhole, grilling, and more.  The interior features a woodburning fireplace with live-edge mantle, chef's kitchen with 4-burner gas range with griddle, stainless steel dishwasher and appliances, quality wood and stone floors throughout, a large bunkroom with 4 bunks, primary suite with spa en-suite bath, laundry area, separate TV or gaming area with spacious table for board games or dining.  Wow!  This is the one! 2025 is the YEAR to find YOURSELF!
#21101086

Pottsboro

236 Homesite Road

2 Beds

2 Baths

999 Sq.Ft.

$420,000

MLS#: 21101086

Elevate your lifestyle with this exquisite property situated in a secure gated community evocative of a luxurious resort. Step into the grandeur of the living room featuring expansive windows, a striking stone fireplace, and breathtaking vistas of the serene greenbelt. This immaculate home offers an open floorplan encompassing 3 bedrooms, a study, 2 dining areas, 2.5 baths, and 2.5 car garage. The residence showcases custom cabinetry, hardwood floors, granite countertops, and ample storage space. The master suite exudes sophistication with plantation shutters and a custom closet. Entertain effortlessly on the meticulously designed patio or unwind in style. Boasting proximity to the golf course and marina, along with a generously sized lot, this property promises a lifestyle of unrivaled elegance and leisure. call today for a special Tour!
#21165961

Pottsboro

21 Lone Oak Boulevard

3 Beds

2 Baths

2,171 Sq.Ft.

$495,000

MLS#: 21165961

Custom-built modern lake retreat just minutes from Lake Texoma! This beautifully designed and recently updated 1 bedroom, 1 bath home sits on approximately half an acre and offers a rare blend of style and indoor-outdoor living. The open-concept living area features vaulted ceilings, abundant natural light, and a full glass garage door, with an electric screen that opens seamlessly to the covered outdoor living space—perfect for entertaining or relaxing in nature.

High-end finishes throughout include custom cabinetry, a kitchen with plenty of counter space, gas oven, power shades, indoor-outdoor surround sound, a spa-inspired bathroom, soaking tub, tankless water heater, spray foam insulation, and thoughtful design details that maximize comfort and efficiency. Step outside to enjoy the expansive yard, outdoor shower, outdoor living area with a gas fireplace, a peaceful wooded setting, and its all within close proximity to Lake Texoma, marinas, and local recreation.

Ideal as a weekend getaway, full-time residence, or short-term rental investment. The dual power gated entry provides added privacy, with plenty of room to expand or personalize the property. A unique opportunity to own a low-maintenance, luxury home near one of North Texas’ most popular lake destinations. This property includes 5 lots with access from Cameo St as well. Ask about additional lots available. Come see why families love Living on Lake Texoma
#21165573

Pottsboro

10 Holland Street

1 Beds

1 Baths

1,008 Sq.Ft.

$499,900

MLS#: 21165573

Weekend Getaway or Investment Short Term Rental? How about both? Welcome to 188 Hacienda Drive. This property has a coveted flare that combines Texas Lake Life and Texas Cabin Life all in one astonishing property. Hillside Hacienda has over 6 years of successful Airbnb & VRBO revenue ($250K per 6 YR) with 5 star reviews. Guest’s rave about the privacy and beautiful scenery. You choose how much or how little you want to book and the rest is yours. Block holidays if you want! It’s all up to you! Available fully furnished for turn-key profitability. Save your money on furnishings, this home has everything. Built in 2002 with rough cedar and a wrap around deck, the beauty of surrounding trees and wildlife are breathtaking. Set back from the road with lots of shade, the rock landscape allows for minimal yard maintenance. The front yard features a custom made fire pit and dry creek bed to divert rain water from the home. Inside, your first glimpse of the open concept is breathtaking. The living, dining and kitchen areas have a warm and welcoming vibe that makes you feel right at home.... The kitchen features a beautiful copper farm house sink, stainless steel appliances and granite counter tops.... Recessed lighting with a wood beams and wood plank ceiling add to the warmth.... The master bedroom also features wood beams with recessed lighting. Master bath has granite counter top with a copper sink and a jetted bathtub. Outside, the back deck provides more open space with an estimated 500 square feet of more views of nature.  Large enough for family gatherings where everyone is comfortable. The stunning view of nature's canopy provides privacy and peaceful gatherings. Start now to get in on Summer 2026 Airbnb & VRBO bookings!
#20945661

Pottsboro

188 Hacienda

3 Beds

2 Baths

1,708 Sq.Ft.

$539,000

MLS#: 20945661

*Seller is willing to aid in Buyer concessions with reasonable offer.*
Discover everyday serenity in this tastefully renovated single-story retreat, perched on the tranquil Preston Peninsula with Lake Texoma as your backdrop. Spanning 1,888 square feet of recently renovated space and beautiful interior with new roof, septic, appliances, HVAC, flooring and paint. You'll appreciate the unique features throughout including transom windows, multiple rooms with vaulted beam ceilings, hewn woodwork, even hardwood floors that are original to the home.
Outside, this peaceful retreat can be enjoyed on the multiple patios to observe the beautifully landscaped and private lot shaded by mature trees. This property offers plenty of parking including an oversized shop perfect for hobbyists or lake enthusiasts with ample lighting and space for boats, vehicles and storage. It's all just a one block stroll or golf cart ride to the peninsula's sandy shores where boating, swimming, local marinas and dining and sunset views become part of your routine.  Easy commute to the Metroplex via highway 75, 289 & I35.  
Ideal as a peaceful primary residence, weekend escape, or income-generating rental, this property captures the essence of lakeside living without the hassle. Zoned in the acclaimed Pottsboro Independent School District.  Don't miss your chance to claim this slice of Lake Texoma tranquility!
#21168008

Pottsboro

80 Louisiana Avenue

4 Beds

3 Baths

1,888 Sq.Ft.

$515,000

MLS#: 21168008

Welcome to 137 S Meadowbrook Drive in Pottsboro, a recently remodeled ranch-style home that puts you just minutes from the fun and freedom of Lake Texoma. This spacious property sits on nearly an acre and offers a flexible setup with 4 bedrooms in the main home, plus a detached private quarters complete with its own half bathroom—perfect for guests, in-laws, a home office, gym, or lake-weekend overflow. Inside, you’ll love the fresh updates including luxury vinyl plank flooring, quartz countertops, an open-concept layout, and plenty of natural light. The generous living spaces make hosting easy, whether it’s family dinners, game nights, or friends rolling in after a day on the lake. Step outside and enjoy wide-open yard space with room for boats, trailers, fire pits, pets, and North Texas living at its best. Located in Pottsboro ISD and close to marinas, fishing, and outdoor recreation, this home is ideal for full-time living, weekend escapes, or investment potential near Lake Texoma.
#21139065

Pottsboro

137 S Meadowbrook Drive

5 Beds

3 Baths

2,217 Sq.Ft.

$424,900

MLS#: 21139065

This beautifully crafted home offers 4 bedrooms, 2.5 baths, and a thoughtfully designed layout. The gourmet kitchen features ceiling-height cabinets, quartz countertops and backsplash, stainless steel appliances, a walk-in pantry, and a spacious breakfast island. The open floor plan is highlighted by a soaring vaulted ceiling in the living area, complemented by 10-foot ceilings and 8-foot doors throughout.

The split bedroom layout ensures privacy for the serene master suite, which overlooks the backyard and includes a spa-like bath with dual sinks, a free-standing tub, and an expansive walk-in closet that connects directly to the laundry room for convenience. Upstairs, a versatile 5th room with a walk-in closet offers endless options—ideal for a guest suite, home office, or media room.

Situated on 1 acre, this property provides plenty of space to build a shop or outdoor retreat. Perfectly located near Highport Marina, you’ll enjoy quick access to all the recreation, beauty, and lifestyle Lake Texoma has to offer!!
#21123433

Pottsboro

328 Brandon Way

4 Beds

2 Baths

2,908 Sq.Ft.

$599,000

MLS#: 21123433

NEW CONSTRUCTION ONE STORY LUXURY HOUSE in Highly Desirable, Prestigious, & Quiet Neighborhood at Lake Country Crossing in Pottsboro. House on Half Acres Land ; just a few minutes away from Lake Texoma. Very attractive Open Floor Plan with huge Living areas. Luxury Home with 4 Bedrooms, plus 1 Media Room & 1 dedicated Office-Study Room. Beautiful 3 Full Size luxury Bathrooms. 100% Solid Wooden Contemporary Doors. Modern decorative & contemporary Lights, Recessed Lights & Fans. Extra Mirror Closet on Master Suite, in addition to a huge Walk in Closet. Stylish Master Bath including Garden Tub, and a separate Modern & Luxury Shower Panel System, and a separate Mirror bi-fold linen closet. Beautiful Vanity with lighted Mirror systems. A huge Kitchen area with a classy modern backsplash. A huge attractive Pantry. Oversize Seating & Eating Island with a built in Trash Can & Modern Sink. Contemporary Cabinets with beautiful Quartz Counter Tops in whole house. In oversize Patio, a desirable built in full size BBQ on a huge Stone Cabinet Island. 6 Burners BBQ, built in Refrigerator, Trash Can & BBQ Sink, a separate second Fireplace & TV space on Patio. House built with 100% Brick & Stone, has 2 Cars Garage. Walking Closets in every room. A very large Back Yard like a Soccer Field. Tour the House & experience the difference!!
#21182936

Pottsboro

144 Shawnee Trail

4 Beds

3 Baths

2,503 Sq.Ft.

$499,950

MLS#: 21182936

Welcome to 455 Panorama Circle – where everyday living feels like a lake retreat.  This spacious 4-bedroom, 3-bath, 2,197 sq ft home with a 3-car garage offers the perfect blend of comfort and convenience just minutes from Lake Texoma. Whether you’re looking for a full-time residence or a weekend getaway, this property puts you at the heart of Pottsboro’s lake lifestyle.

Step inside and you’ll find an inviting open floor plan with plenty of natural light, designed for both entertaining and relaxing after a day on the water. The kitchen is well-appointed with generous storage and workspace, opening to living and dining areas that flow seamlessly together. 
The primary suite is a true retreat, featuring a spacious layout and private bath. Two additional bedrooms and bathrooms ensure room for family or guests. Outdoors, the property offers ample parking and storage for lake toys – from jet skis to fishing gear – thanks to the oversized 3-car garage and extra driveway space. The backyard is ready for gatherings, cookouts, or quiet evenings under the Texas sky.

Located in a sought-after neighborhood with quick access to several marinas, boat ramps, and Tanglewood Resort, you’re never far from boating, fishing, dining, or lakeside sunsets.  Don’t just buy a home – embrace the Texoma lifestyle.
#21000534

Pottsboro

455 Panorama Circle

4 Beds

2 Baths

2,197 Sq.Ft.

$559,000

MLS#: 21000534

 - property

Send a message

Message successfully sent.

Your message

What is 3 + 4 ?

Reason for contacting?

Sign Out

Virtual Assistant

Would you like to take the next step with this property? We can help you schedule a showing or virtual tour, or send you more details.

Yes, I would like more information.

Thank You for Your Reply, One of Our Agents will contact you as soon as possible

No, maybe later.

Thank you, you can always contact me via email, phone number or through the contact form.

Realhub AI

Lucy - Your AI-Powered Realtor

Update Your Temporary Password

Personalize your search

Enter your email and we'll notify you immediately when new listings match what you're looking for.

or enter email address

Already have an account ? Login here

Continue your home search

Already have an account ? Login here

We use cookies

We use cookies primarily for analytics to enhance your experience. By accepting, you agree to our use of these cookies. You can manage your preferences or learn more about our cookies policy.