Features & Amenities

Interior

  • Other Interior Features

    Kitchen Island, Open Floorplan, Pantry, Vaulted Ceiling(s), Walk-In Closet(s), Wet Bar, High Speed Internet, Wired for Sound

  • Total Bedrooms

    4

  • Bathrooms

    3

  • 1/2 Bathrooms

    1

  • Basement YN

    NO

  • Cooling YN

    YES

  • Cooling

    Ceiling Fan(s), Central Air, Electric

  • Fireplace YN

    YES

  • Heating YN

    YES

  • Heating

    Exhaust Fan, Central, Natural Gas

  • Pet friendly

    N/A

Exterior

  • Garage

    Yes

  • Garage spaces

    2

  • Construction Materials

    Brick

  • Parking

    Garage, Garage Door Opener, Garage Faces Front, Kitchen Level, Attached

  • Patio and Porch Features

    Covered

  • Pool

    No

  • Waterfront YN

    NO

Area & Lot

  • Lot Features

    Few Trees, Interior Lot, Landscaped, Subdivided

  • Lot Size(acres)

    0.149

  • Property Type

    Residential

  • Property Sub Type

    Single Family Residence

  • Architectural Style

    Traditional

Price

  • Sales Price

    $500,000

  • Tax Amount

    $11,482

  • Sq. Footage

    3, 154

  • Price/SqFt

    $158

HOA

  • Association

    Yes

  • Association Fee

    $330

  • Association Fee Frequency

    Annually

  • Association Fee Includes

    N/A

School District

  • Elementary School

    Lizzie Curtis

  • Middle School

    Leo Adams

  • High School

    Eaton

Property Features

  • Foundation Details

    Slab

  • Senior Community YN

    NO

  • Sewer

    Public Sewer

  • Tax Lot

    34

  • Water Source

    Public

Schedule a Showing

Showing scheduled successfully.

<
>
IN PERSON
VIA CHAT

What is 3 + 4 ?


Change time

Mortgage calculator

Estimate your monthly mortgage payment, including the principal and interest, property taxes, and HOA. Adjust the values to generate a more accurate rate.

Your payment

Principal and Interest:

$

Property taxes:

$

HOA fees:

$

Total loan payment:

$

Total interest amount:

$

Location

County

Tarrant

Elementary School

Lizzie Curtis

Middle School

Leo Adams

High School

Eaton

Listing Courtesy of Mark Bradford , Allie Beth Allman & Assoc.

RealHub Information is provided exclusively for consumers' personal, non-commercial use, and it may not be used for any purpose other than to identify prospective properties consumers may be interested in purchasing. All information deemed reliable but not guaranteed and should be independently verified. All properties are subject to prior sale, change or withdrawal. RealHub website owner shall not be responsible for any typographical errors, misinformation, misprints and shall be held totally harmless.

Agent Joe Boston

AGENT

Joe Boston

Call Joe today to schedule a private showing.


* Listings on this website come from the FMLS IDX Compilation and may be held by brokerage firms other than the owner of this website. The listing brokerage is identified in any listing details. Information is deemed reliable but is not guaranteed. If you believe any FMLS listing contains material that infringes your copyrighted work please click here to review our DMCA policy and learn how to submit a takedown request.© 2024 FMLS.
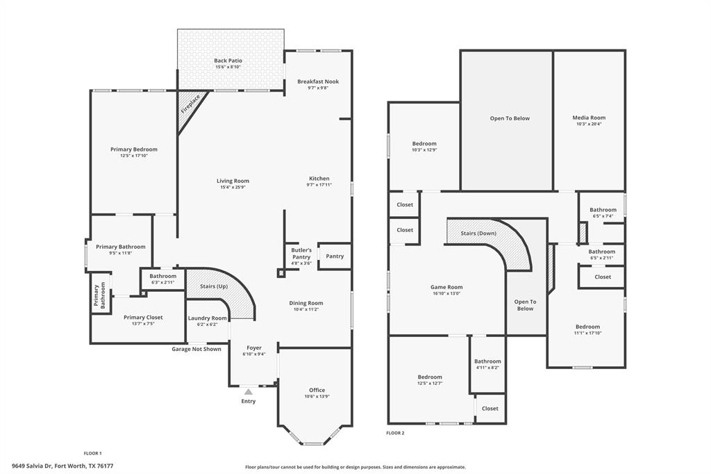
This beautifully designed two-story home, offers the perfect blend of modern construction, thoughtful updates, and functional living spaces ideal for today’s lifestyle. Newer-age construction means improved energy efficiency, contemporary floor plans, updated systems, and the peace of mind that comes with more current building standards. The spacious primary suite is located on the first floor and features generous proportions, dual sinks, an ensuite bath, and a walk-in closet—creating a true private retreat. Also on the main level is a dedicated office, perfect for working from home, along with an open and inviting living area showcasing built-in cabinetry, a gas fireplace, and abundant natural light. The kitchen is the heart of the home, complete with granite countertops, a large island, eat-in dining space, pantry, built-in cabinetry, gas cooktop, and water line to the refrigerator—ideal for both everyday living and entertaining. Adjacent dining and breakfast areas provide flexibility for gatherings large or small. Upstairs, you’ll find three spacious secondary bedrooms, including one with an ensuite bath, along with an oversized game room and a dedicated media room featuring built-in cabinetry perfect for movie nights or game days. Multiple full baths ensure comfort and convenience for family and guests alike. Additional highlights include engineered wood, ceramic tile, and carpet flooring, vaulted ceilings, sound system wiring, a wet bar, tankless water heater, and a full security system. The brick exterior, composition roof, and covered patio add timeless appeal, while the landscaped interior lot with sprinkler system offers easy outdoor enjoyment. Located in a vibrant community with access to a clubhouse, pool, parks, and jogging and bike paths, this home combines comfort, style, and modern convenience—all within a well-maintained neighborhood setting.

9649 Salvia Drive

Message successfully sent.

What would you like to know?

What is 3 + 4 ?

Related Properties

Beautifully Renovated 5-Bedroom, 4.5-Bath Home in Prime Keller ISD Location

Located in the highly sought-after Keller ISD, this stunning two-story home has been thoughtfully updated with luxury finishes and a spacious layout perfect for modern living. The light-filled kitchen showcases sleek gray shaker cabinets, brand-new high-end appliances, and opens to a generous living area highlighted by a striking floor-to-ceiling tiled fireplace.

Enjoy the rare convenience of dual master suites—one on each level—offering ultimate flexibility for families, guests, or multi-generational living. With five total bedrooms, a dedicated downstairs office, and an upstairs media room with additional living space, there’s plenty of room to spread out and enjoy.

Additional features include elegant laminate flooring throughout, recessed LED lighting, and a neutral modern palette ready for your personal touch.

Conveniently located near major shopping centers—including HEB, Alliance Town Center, and Presidio Village—this home combines luxury, location, and livability.

Schedule your private showing today—this one won’t last!
#21088401

Fort Worth

10305 Stoneside Trail

5 Beds

4 Baths

3,798 Sq.Ft.

$575,400

MLS#: 21088401

Welcome to this beautiful 4 bedroom, 2 bath, 2 car garage home on a large corner lot. This magnificent home is situated in Lakes of River Trails within the highly acclaimed HEB ISD. Step inside to high ceilings, gorgeous crown molding and arched doorways throughout.  Enjoy an open living area and split floor plan with the front bedroom perfect for an office space with large windows and plenty of natural light.  Step outside your front door to walk to lakes and jogging trails.  All this is located just minutes from shopping, entertainment and restaurants. You will have quick access to I820 for a quick commute to downtown Fort Worth. You do not want to miss this one, contact your favorite agent and schedule your private tour today!!
#21176120

Fort Worth

8228 Fall Crest Drive

4 Beds

2 Baths

2,048 Sq.Ft.

$409,900

MLS#: 21176120

Welcome to 1113 Carlock!! Beautifully updated 2474sqft. home is 4 bedroom, 3 full bathrooms and has an ideal Fort Worth location.  Home is AMAZING and turnkey for new owners!!  Inside, you’ll find rich wood floors, abundant windows, and natural light that fills the open living spaces. The updated kitchen features stainless steel appliances, ample cabinetry, and great flow for everyday living and entertaining. The primary suite offers a private retreat with an updated en suite bath and separate his-and-her closets. All bedrooms are generously sized and include walk-in closets for excellent storage.  A standout feature is the secondary primary suite above the garage, complete with a full bath and small kitchen. With private separation from the main home, it’s ideal for multigenerational living, a home office, guest quarters, or a roommate to generate passive income.  Major updates provide peace of mind, including a brand-new HVAC system in 2024 and all sewage lines replaced from the house to the street. Outside, enjoy a nice-sized backyard with a large patio perfect for relaxing or entertaining.  Walking distance to Magnolia Avenue, just a short drive to TCU and all that Downtown Fort Worth has to offer, walking distance to schools, this location delivers unbeatable access to dining, entertainment, and culture while maintaining neighborhood charm.
#21186779

Fort Worth

1113 Carlock Street

4 Beds

3 Baths

2,474 Sq.Ft.

$550,000

MLS#: 21186779

THIS HOME WILL BE SOLD AS AN INVESTMENT PROPERTY. Home has been leased and contract ends in nov 2026. If you are interested in details please reach out.
#21098350

Fort Worth

2929 Spotted Owl Drive

3 Beds

2 Baths

1,825 Sq.Ft.

$420,000

MLS#: 21098350

*Price is contingent upon using builders preferred lender* - Stunning green belt view from back porch on oversized lot with added 3rd car garage bay
#20960191

Fort Worth

7249 Wayward Wind Drive

4 Beds

2 Baths

3,063 Sq.Ft.

$584,900

MLS#: 20960191

Location, Location, Location! Prime spot in close proximity to Texas Christian University. The property offers easy access to campus, making it perfect for students, faculty, or alumni.

Additionally, this home boasts a convenient location to other amenities near grocery store, restaurants, and Foster Park, which connects to the scenic Trinity Trails.
#21188393

Fort Worth

3554 Winston Road

4 Beds

2 Baths

1,687 Sq.Ft.

$469,000

MLS#: 21188393

Don’t miss out on the Davenport plan, a stunning single-story 4-bedroom, 3-bathroom house. With 2,317 square feet, this home offers plenty of space for comfortable living. The living room opens to the dining room and kitchen with a large island, perfect for entertaining guests. The primary bedroom is a luxury retreat with an attached bathroom and large walk-in closet. Enjoy privacy and natural light while you work in a study at the front of the home. A 2-car garage makes coming and going easy. We invite you to make this beautiful property your own.
#21125613

Fort Worth

7825 Winterbloom Way

4 Beds

3 Baths

2,317 Sq.Ft.

$583,244

MLS#: 21125613

This beautiful home has 2106 sq. ft. of living space. I a quite treelined street. There is 4 bedrooms and 2.5 bath. The house also comes equipped with a coved patio and may other features.
#21063630

Fort Worth

7516 lake arrowhead dr

4 Beds

2 Baths

2,106 Sq.Ft.

$400,000

MLS#: 21063630

This beautifully maintained home offers striking curb appeal and a thoughtfully designed layout that blends comfort with sophistication. Inside, you’re welcomed by an expansive, light-filled interior accented by soft neutral tones and upgraded wood-look tile flooring that flows seamlessly through the main living areas. The elegant formal dining room connects effortlessly to the kitchen and breakfast space, creating an open setting ideal for entertaining or everyday gatherings. The chef-inspired kitchen features a gas range, abundant cabinetry, and a large center island that overlooks the inviting family room and cozy fireplace — a perfect setup for hosting or relaxed evenings at home. Tucked privately at the back of the home, the main-level split primary suite offers a peaceful retreat complete with a spa-like ensuite bath featuring a soaking tub, walk-in shower, and spacious walk-in closet. On the opposite side of the first floor, a secondary bedroom and full bath provide flexibility for guests, multigenerational living, or a dedicated home office. Upstairs, multiple entertainment spaces await, including a generous game room and dedicated theatre room. Two additional bedrooms — both with walk-in closets — share a Jack-and-Jill bath, plus an added half bath for convenience. Step outside to a covered patio overlooking a spacious backyard with room to design your ideal outdoor oasis — whether that includes a garden, play space, or future pool. Situated in the highly sought-after master-planned community of Sendera Ranch, residents enjoy resort-style amenities, pools, parks, walking trails, and community events. Conveniently located with easy access to major highways, Dallas Fort Worth International Airport, the Fort Worth Stockyards, and Eagle Mountain Lake — plus abundant dining and shopping options nearby — this home delivers the ideal balance of lifestyle and location. Schedule your home tour today!
#21181521

Fort Worth

14740 Rocky Face Lane

4 Beds

3 Baths

3,007 Sq.Ft.

$425,000

MLS#: 21181521

***The sellers have recently refreshed the interior with new paint, offering a crisp, updated look.*** Step into this beautifully appointed 3-bedroom, 2-bathroom home in the sought-after Berkshire community of Fort Worth. Designed with an open-concept layout, this residence offers both comfort and modern style. The main living areas showcase rich wood plank flooring, while bedrooms provide plush carpet and bathrooms feature wood-grain ceramic tile for a refined finish. The kitchen is a true centerpiece with granite countertops, both a peninsula and island, stainless steel appliances, a farmhouse sink, and recessed lighting that flows into the dining and living areas. The inviting living room is anchored by a stunning stone-faced fireplace—perfect for entertaining or relaxing evenings. The private primary suite boasts a walk-in closet, double vanity, separate shower, and garden tub for unwinding. Additional highlights include a tankless water heater, a mudroom off the garage entry, utility closet with full-sized washer-dryer connections and cabinets, and a covered patio overlooking the backyard. Berkshire residents enjoy resort-style amenities, including a sparkling pool, clubhouse with rentable event space, playground, catch-and-release fishing pond, and scenic bike trails. Located in Northwest ISD with easy access to Hwy 287 and I-35W, the home is just minutes from Alliance Town Center, Presidio Towne Crossing, the historic Fort Worth Stockyards, Eagle Mountain Lake, and downtown Fort Worth. This home seamlessly blends thoughtful design, modern upgrades, and an unbeatable location—ready to welcome its next owners.
#21052822

Fort Worth

10108 Haversham Drive

3 Beds

2 Baths

2,145 Sq.Ft.

$409,000

MLS#: 21052822

 - property

Send a message

Message successfully sent.

Your message

What is 3 + 4 ?

Reason for contacting?

Sign Out

Virtual Assistant

Would you like to take the next step with this property? We can help you schedule a showing or virtual tour, or send you more details.

Yes, I would like more information.

Thank You for Your Reply, One of Our Agents will contact you as soon as possible

No, maybe later.

Thank you, you can always contact me via email, phone number or through the contact form.

Realhub AI

Lucy - Your AI-Powered Realtor

Update Your Temporary Password

Personalize your search

Enter your email and we'll notify you immediately when new listings match what you're looking for.

or enter email address

Already have an account ? Login here

Continue your home search

Already have an account ? Login here

We use cookies

We use cookies primarily for analytics to enhance your experience. By accepting, you agree to our use of these cookies. You can manage your preferences or learn more about our cookies policy.