Property
Beds
4
Full Baths
3
1/2 Baths
None
Year Built
2004
Sq.Footage
3,387
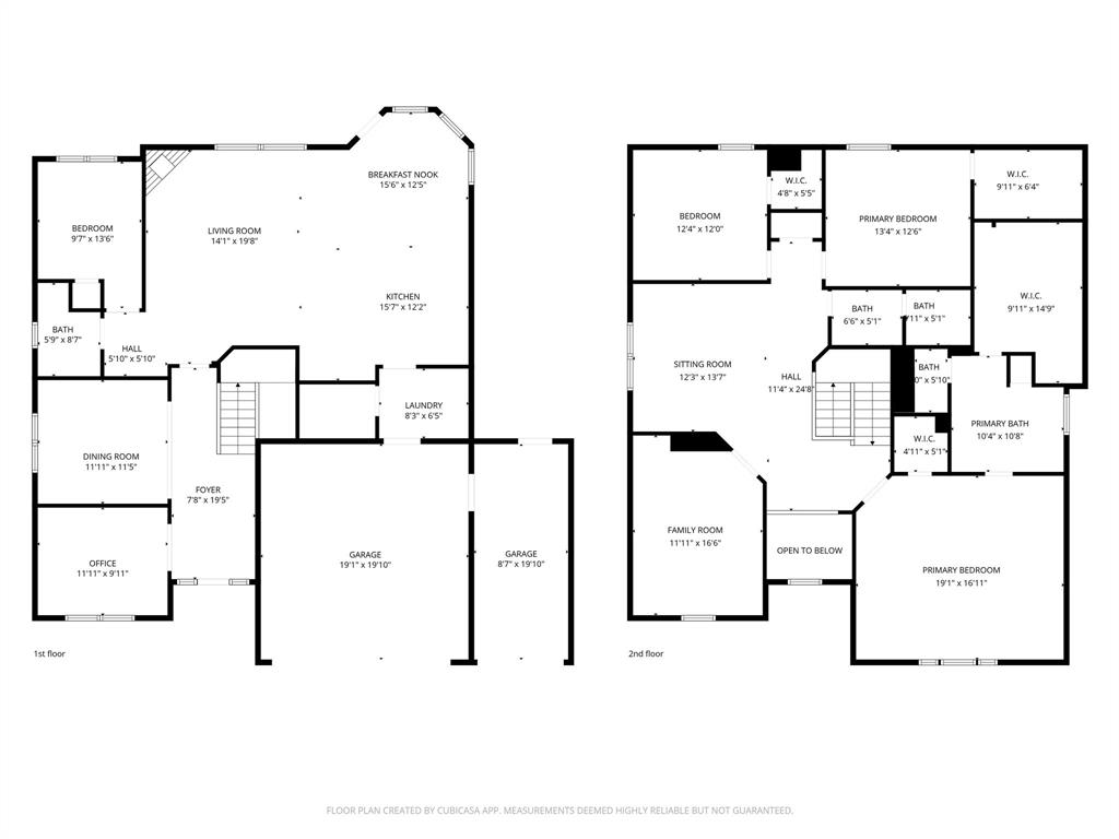
This stunning two-story brick home, ideally located in the highly sought-after Craig Ranch community, exudes timeless curb appeal with its elegant façade and spacious front three-car garage. Step inside to discover a bright, open interior filled with natural light, rich hardwood floors, and sophisticated designer finishes throughout. The grand living room features a custom built-in entertainment center and flows seamlessly into the chef’s kitchen, showcasing painted cabinetry, a wrap-around island, gas cooktop, and custom pantry. The adjoining breakfast nook, framed by charming bay windows, offers the perfect spot to enjoy your morning coffee. A private study enclosed by French doors provides an ideal work-from-home retreat, while the full-size utility room offers contemporary updates and functionality. A first-floor guest suite ensures comfort and privacy for visitors. Upstairs, enjoy a spacious game room, perfect for media nights or a pool table, and a serene primary suite that serves as a true escape, complete with dual vanities, a jetted tub, separate shower, and custom walk-in closet. Two additional bedrooms and a versatile bonus room, ideal as a fifth bedroom, playroom, home gym, or flex space, round out the second level. Step outside to your private backyard oasis featuring a pergola-covered patio, and lush, fenced yard, perfect for entertaining or relaxing under the stars. With its open-concept design, thoughtful upgrades, and unbeatable location near premier shopping, dining, and parks, this Craig Ranch beauty blends luxury, comfort, and convenience in one of McKinney’s most desirable neighborhoods.
Features & Amenities
Interior
-
Other Interior Features
Built-in Features, Chandelier, Double Vanity, Eat-in Kitchen, Granite Counters, Kitchen Island, Open Floorplan, Pantry, Vaulted Ceiling(s), Walk-In Closet(s), High Speed Internet
-
Total Bedrooms
4
-
Bathrooms
3
-
Basement YN
NO
-
Cooling YN
YES
-
Cooling
Ceiling Fan(s), Central Air, Electric
-
Heating YN
YES
-
Heating
Exhaust Fan, Central, Natural Gas
-
Pet friendly
N/A
Exterior
-
Garage
Yes
-
Garage spaces
3
-
Construction Materials
Wood Siding, Brick
-
Other Exterior Features
Fire Pit, Rain Gutters, Lighting, Private Yard
-
Parking
Concrete, Covered, Direct Access, Driveway, Enclosed, Garage, Garage Door Opener, Garage Faces Front, Inside Entrance, Kitchen Level, Lighted, Side By Side, Storage, Attached
-
Patio and Porch Features
Covered, Front Porch, Patio, Rear Porch
-
Pool
No
-
Waterfront YN
NO
Area & Lot
-
Lot Features
Few Trees, Interior Lot, Landscaped, Subdivided
-
Lot Size(acres)
0.16
-
Property Type
Residential
-
Property Sub Type
Single Family Residence
-
Architectural Style
Traditional
Price
-
Sales Price
$625,000
-
Tax Amount
9766.0
-
Sq. Footage
3, 387
-
Price/SqFt
$184
HOA
-
Association
Yes
-
Association Fee
$905
-
Association Fee Frequency
Annually
-
Association Fee Includes
N/A
School District
-
Elementary School
Ogle
-
Middle School
Scoggins
-
High School
Emerson
Property Features
-
Foundation Details
Slab
-
Senior Community YN
NO
-
Sewer
Public Sewer
-
Tax Lot
2
-
Water Source
Public
Schedule a Showing
Showing scheduled successfully.
Mortgage calculator
Estimate your monthly mortgage payment, including the principal and interest, property taxes, and HOA. Adjust the values to generate a more accurate rate.
Your payment
Principal and Interest:
$
Property taxes:
$
HOA fees:
$
Total loan payment:
$
Total interest amount:
$
Location
County
Collin
Elementary School
Ogle
Middle School
Scoggins
High School
Emerson
Listing Courtesy of Kristi Reinertsen , Coldwell Banker Realty Frisco
RealHub Information is provided exclusively for consumers' personal, non-commercial use, and it may not be used for any purpose other than to identify prospective properties consumers may be interested in purchasing. All information deemed reliable but not guaranteed and should be independently verified. All properties are subject to prior sale, change or withdrawal. RealHub website owner shall not be responsible for any typographical errors, misinformation, misprints and shall be held totally harmless.
Office and Team Coordinator
MhamerSas
Call Mhamer today to schedule a private showing.
* Listings on this website come from the FMLS IDX Compilation and may be held by brokerage firms other than the owner of this website. The listing brokerage is identified in any listing details. Information is deemed reliable but is not guaranteed. If you believe any FMLS listing contains material that infringes your copyrighted work please click here to review our DMCA policy and learn how to submit a takedown request.© 2024 FMLS.