Features & Amenities

Interior

  • Other Interior Features

    Chandelier, Eat-in Kitchen, Granite Counters, Kitchen Island, Open Floorplan, Pantry, Vaulted Ceiling(s), High Speed Internet

  • Total Bedrooms

    3

  • Bathrooms

    2

  • 1/2 Bathrooms

    1

  • Basement YN

    NO

  • Cooling YN

    YES

  • Cooling

    Ceiling Fan(s), Central Air, Zoned

  • Fireplace YN

    YES

  • Heating YN

    YES

  • Heating

    Exhaust Fan, Central, Natural Gas, Zoned

  • Pet friendly

    N/A

Exterior

  • Garage

    Yes

  • Garage spaces

    2

  • Construction Materials

    Brick

  • Other Exterior Features

    Rain Gutters

  • Parking

    Driveway, Garage, Garage Door Opener, Attached

  • Patio and Porch Features

    Covered, Rear Porch

  • Pool

    No

  • Waterfront YN

    NO

Area & Lot

  • Lot Features

    Landscaped

  • Lot Size(acres)

    0.267

  • Property Type

    Residential

  • Property Sub Type

    Single Family Residence

  • Architectural Style

    Traditional

Price

  • Sales Price

    $475,000

  • Tax Amount

    9731.0

  • Sq. Footage

    2, 737

  • Price/SqFt

    $173

HOA

  • Association

    Yes

  • Association Fee

    $495

  • Association Fee Frequency

    Annually

  • Association Fee Includes

    N/A

School District

  • Elementary School

    Patterson

  • Middle School

    Kennedale

  • High School

    Kennedale

Property Features

  • Foundation Details

    Slab

  • Senior Community YN

    NO

  • Sewer

    Public Sewer

  • Tax Lot

    8

  • Water Source

    Public

Schedule a Showing

Showing scheduled successfully.

<
>
IN PERSON
VIA CHAT

What is 3 + 4 ?


Change time

Mortgage calculator

Estimate your monthly mortgage payment, including the principal and interest, property taxes, and HOA. Adjust the values to generate a more accurate rate.

Your payment

Principal and Interest:

$

Property taxes:

$

HOA fees:

$

Total loan payment:

$

Total interest amount:

$

Location

County

Tarrant

Elementary School

Patterson

Middle School

Kennedale

High School

Kennedale

Listing Courtesy of John Pollock , Pinnacle Group REALTORS

RealHub Information is provided exclusively for consumers' personal, non-commercial use, and it may not be used for any purpose other than to identify prospective properties consumers may be interested in purchasing. All information deemed reliable but not guaranteed and should be independently verified. All properties are subject to prior sale, change or withdrawal. RealHub website owner shall not be responsible for any typographical errors, misinformation, misprints and shall be held totally harmless.

Agent Mhamer Sas

Office and Team Coordinator

Mhamer Sas

Call Mhamer today to schedule a private showing.


* Listings on this website come from the FMLS IDX Compilation and may be held by brokerage firms other than the owner of this website. The listing brokerage is identified in any listing details. Information is deemed reliable but is not guaranteed. If you believe any FMLS listing contains material that infringes your copyrighted work please click here to review our DMCA policy and learn how to submit a takedown request.© 2024 FMLS.
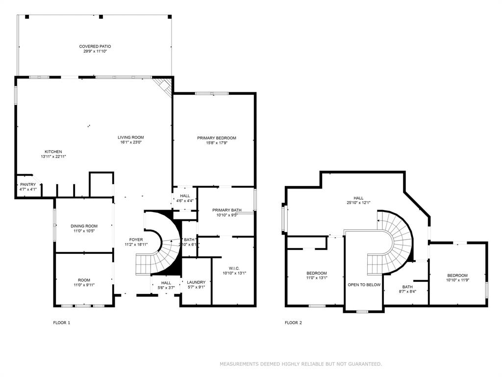
Welcome to highly-sought Melia Ranch subdivision. This well-designed home has an open floor plan. On the first level a kitchen with gas cook top, stainless steel appliances, a generous island with seating, walk-in pantry, granite countertops, & breakfast area will please any chef. On the first floor a formal dining room, an office, utility room, and half bath are found, along with the primary suite which offers a large bath with garden tub, separate shower & huge walk-in closet. Upstairs two bedrooms, a full bathroom, and a spacious game room complete the interior. The .267 acre lot provides space for a garden and lots of room for play, and it is fully sprinklered. A large covered patio is the perfect location for cookouts! This prime location is just minutes from Tierra Verde Golf Course & Country Club, MLK Sports Complex, as well as an abundance of shopping and restaurants.

5105 Santa Rosa Drive

Message successfully sent.

What would you like to know?

What is 3 + 4 ?

Related Properties

Beautifully maintained townhome in the sought-after Viridian master-planned community! This move-in-ready 2-bedroom, 2.5-bath home features a bright and airy open-concept layout with soaring ceilings and abundant natural light. The chef’s kitchen is equipped with a 5-burner gas cooktop, granite countertops, built-in microwave, and sleek white cabinetry with an eat-in island for casual dining. The spacious primary suite includes a large walk-in closet and private en-suite bath. Enjoy the lifestyle Viridian has to offer—residents have access to resort-style amenities including tennis courts, a sailing center, a lakefront peninsula with five pools, a pavilion, an amphitheater, and miles of scenic walking trails—all just a short walk from your front door.
#21017829

Arlington

4553 Cypress Thorn Drive

2 Beds

2 Baths

1,509 Sq.Ft.

$404,999

MLS#: 21017829

Property occupied by Airbnb guest till Jan 2026***

CALLING ALL LANDLORDS!!! Feast your eyes on a turn key midterm rental that's ready to be added to your investment portfolio!!! This property is nestled in the gated community of Foxwood Glen and features 4 beds, 2 full baths and a large media room to entertain your longterm guests or tenants. Easy access to I-20 offers quick trips to entertainment and sports venues like Fort Worth, ATT Stadium and Globe Life Field.
#21120887

Arlington

2615 Fox Creek Trail

4 Beds

2 Baths

3,126 Sq.Ft.

$465,000

MLS#: 21120887

*This home is at dirt and is estimated to be complete in Nov or Dec time-frame*

Welcome to California Meadows – Where Comfort Meets Convenience in the Heart of Arlington

Perfectly situated at California Lane and Sprocket Drive, California Meadows offers the ideal blend of suburban charm and big-city accessibility. Nestled in the vibrant heart of Arlington, TX, this brand-new community places homeowners just minutes from top-rated schools, major highways, shopping, dining, and all the entertainment that makes Arlington a destination city.

This thoughtfully planned neighborhood will feature a variety of modern, energy-efficient homes with open-concept layouts and smart home technology – all backed by America’s Builder, D.R. Horton. Whether you’re a first-time buyer, growing household, or simply looking for low-maintenance living with style, California Meadows has something for everyone.

Enjoy easy access to I-20, Hwy 360, and all the attractions of the Entertainment District, including AT&T Stadium, Globe Life Field, and Texas Live! Plus, with nearby parks, trails, and green spaces, it’s easy to balance city life with outdoor leisure.
#21047559

Arlington

2816 Bluebird Court

4 Beds

3 Baths

2,551 Sq.Ft.

$494,990

MLS#: 21047559

MOTIVATED SELLER!!! You will fall in love with this immaculate home in prestigious Oak Ridge Estates near Lake Arlington!  This home has been meticulously maintained and beautifully updated.  When you walk in, you will see the large living room with a vaulted ceiling that is open to the lovely dining room.  The living room has been extended to create a spacious area with extra flexibility.  The kitchen has been completely remodeled and updated with custom cabinets with lots of storage, a gas stove and a huge island with seating around it.  In addition, a whole house reverse osmosis water purification system has been installed to provide 99% pure water.  There are 2 screened in porches.  One outside the kitchen and the other overlooks the backyard and deck.  The lush backyard landscaping make it a quiet oasis! The house is well arranged with practical, quality upgrades and lots of usable space that make it perfect for a family and for entertaining guests!  Arlington ISD with highly rated schools.  No HOA! Conveniently located with quick access to I20.
#21120603

Arlington

6318 Amicable Drive

3 Beds

2 Baths

2,310 Sq.Ft.

$459,900

MLS#: 21120603

Welcome to The Elements at Viridian — the premier 55+ lakeside community where luxury meets lifestyle! This beautifully upgraded 2-bedroom, 2-bath  PLUS STUDY home is truly one of a kind. From the moment you arrive, you’ll appreciate the charming front walkway and ramp, offering 100% handicap accessibility without compromising on style. Step inside to find spacious, light-filled living areas, high-end finishes, and thoughtful upgrades throughout. The chef’s kitchen opens seamlessly to the living and dining spaces — perfect for entertaining or quiet evenings at home. Both bedrooms are generously sized, and the primary suite features a spa-inspired bath with modern design touches. Step outside and fall in love with the gorgeous backyard retreat — beautifully landscaped and ideal for relaxing, gardening, or hosting friends. Walking distance to the Magnolia Lifestyle Center, residents enjoy exclusive access to The Elements’ incredible amenities — from lakeside trails and resort-style pools to fitness, pickleball, and a vibrant calendar of community activities. This home shows beautifully and offers the perfect blend of comfort, accessibility, and active adult living. This home shows beautifully and offers the perfect blend of comfort, accessibility, and active-adult living!
#21098711

Arlington

4815 Beaver Creek Drive

2 Beds

2 Baths

2,018 Sq.Ft.

$539,000

MLS#: 21098711

Resort-Style 55+ Living at The Elements at Viridian! Welcome to this beautiful three-bedroom, two-bath home in the highly sought-after Elements at Viridian, an exclusive 55+ active adult community offering resort-style amenities and an unbeatable lifestyle. Enjoy an open-concept layout perfect for entertaining, with light-filled living spaces and a beautifully landscaped backyard ideal for relaxing or hosting friends. Just a short walk away, the Magnolia Lifestyle Center serves as the heart of the Elements community — featuring a resort-style pool, pickleball and bocce ball courts, fitness and art studios, scenic walking trails, and a dog park. It’s the perfect place to connect, stay active, and enjoy every day to the fullest. Located within minutes of DFW Airport, AT&T Stadium, Globe Life Field, and Texas Live, this home offers easy access to top entertainment, dining, and shopping, all while maintaining a serene, community-focused environment. Discover the perfect blend of luxury, convenience, and connection — all waiting for you here at The Elements at Viridian.
#21091912

Arlington

4826 Forest Crest Parkway

3 Beds

2 Baths

1,823 Sq.Ft.

$420,000

MLS#: 21091912

Price reduced
OPEN HOUSE November 12, 2025!!! Swing by for some Chick-Fil-A, refreshments, and to tour this beautiful home! Welcome Home!!! This stunning property perfectly blends modern style with everyday comfort. The open-concept layout seamlessly connects the kitchen, breakfast nook, and living areas, making this home perfect for entertaining and comfortable living. The gourmet kitchen is the true heart of the home, boasting sleek countertops with a waterfall-edge island, stainless steel appliances, a gas range, modern pendant lighting, and abundant cabinetry for storage. Additionally on the first floor you will find a formal dining that could serve many purposes and a spacious primary suite. Upstairs you’ll find a secondary living space, 3 bedrooms, and a full bathroom offering comfort and privacy. The home’s thoughtful layout provides flexibility for families of all sizes, with space for relaxation, work, and play. Step outside to a private backyard, perfect for gatherings or quiet evenings under the stars. The fenced yard offers privacy and plenty of room for outdoor dining or playtime. With its combination of modern design, quality finishes, and inviting atmosphere, this home is truly move-in ready and waiting for its next owners to enjoy!!
#21087495

Arlington

2815 Long Slope Road

4 Beds

2 Baths

3,081 Sq.Ft.

$475,000

MLS#: 21087495

Charming and beautifully updated 4-bedroom, 2-bath Arlington home filled with warmth, character, and modern style! This inviting home offers an open floorplan designed for comfortable living and effortless entertaining. Stunning bamboo floors flow throughout the spacious living areas, creating a seamless and elegant look. The modern kitchen is a true highlight, boasting a large butcher block island, built-in appliances, a gas stove, and ample prep and storage space—perfect for any home chef. The open layout connects the kitchen to the living and dining areas, making it easy to gather with friends. The serene primary suite offers a peaceful retreat with a walk-in closet, private ensuite bath, and direct access to the backyard oasis. Three additional bedrooms provide flexibility for guests, with the fourth bedroom ideal as a second living area, large home office, or media room.  Experience your own private sanctuary landscaped backyard that is shaded by mature oak trees and features a large deck, relaxing hot tub, and tranquil pond—creating a perfect space for outdoor entertaining or quiet relaxation. With abundant curb appeal, thoughtful updates, and a backyard that feels like a retreat, this Arlington gem truly has it all. Enjoy the beauty of nature, the comfort of modern living, and the convenience of a great location—ready for you to call home! 3D tour available online.
#21089763

Arlington

809 Valley Oaks Lane

4 Beds

2 Baths

2,444 Sq.Ft.

$389,900

MLS#: 21089763

Charming home perfectly situated on corner lot in Forest Park neighborhood with mature trees and luscious landscaping. Step inside to a welcoming layout of formal living and dining perfect for entertaining. This 4 bedroom, 3 bath gem offers a perfect blend of comfort and character. Spacious kitchen with ample storage and counter space. Enjoy outdoor living in this large backyard perfect for family fun. Some of the many features of this home are whole house generator, triple pane windows, extra insulation, oversized garage and access to backyard for RV or boat parking. Home is located minutes from AT&T stadium, Globe Life Park, amusement and water park. Easy access to major highways, shopping, restaurants and entertainment. A must see!!
#21076744

Arlington

1012 Walnut Drive

4 Beds

3 Baths

2,556 Sq.Ft.

$398,500

MLS#: 21076744

Charming stone and brick home in the heart of Viridian, offering timeless curb appeal and a spacious, open layout designed for modern living. Step inside to find rich hardwood floors flowing through the main areas, vaulted ceilings, and abundant natural light.
The gourmet kitchen is a centerpiece with granite countertops, stainless steel appliances, gas cooktop, double ovens, and a large island with breakfast bar seating—perfect for entertaining or family meals. Custom wood cabinetry provides exceptional storage and warmth, while the adjoining living room features a stone fireplace and a wall of windows overlooking the backyard.
A formal dining room with wood floors and elegant lighting sets the stage for special occasions. The private primary suite offers a serene retreat with high ceilings, a wall of windows, and a spa-like ensuite bath complete with dual vanities, a soaking tub, and a walk-in shower. Secondary bedrooms are generously sized, with flexibility for guests, family, or a home office. Upstairs you will find a second living area with a bedroom and full bath, perfect for guests, or growing kids. 
Enjoy the outdoors with a covered patio and landscaped yard, ready for gatherings or quiet evenings. Additional highlights include a two-car garage, ample storage, and a prime location within walking distance to Viridian’s award-winning amenities: Lake Club, Sailing Center, swimming pools, tennis and volleyball courts, trails, parks, and the on-site elementary school.
This home combines elegance, comfort, and convenience—all in one of Arlington’s most desirable master-planned communities.
#21074440

Arlington

3617 Plum Vista Place

4 Beds

3 Baths

2,851 Sq.Ft.

$569,900

MLS#: 21074440

 - property

Send a message

Message successfully sent.

Your message

What is 3 + 4 ?

Reason for contacting?

Sign Out

Virtual Assistant

Would you like to take the next step with this property? We can help you schedule a showing or virtual tour, or send you more details.

Yes, I would like more information.

Thank You for Your Reply, One of Our Agents will contact you as soon as possible

No, maybe later.

Thank you, you can always contact me via email, phone number or through the contact form.

Realhub AI

Lucy - Your AI-Powered Realtor

Update Your Temporary Password

Personalize your search

Enter your email and we'll notify you immediately when new listings match what you're looking for.

or enter email address

Already have an account ? Login here

Continue your home search

Already have an account ? Login here

We use cookies

We use cookies primarily for analytics to enhance your experience. By accepting, you agree to our use of these cookies. You can manage your preferences or learn more about our cookies policy.