Property
Beds
2
Full Baths
2
1/2 Baths
1
Year Built
1985
Sq.Footage
1,220
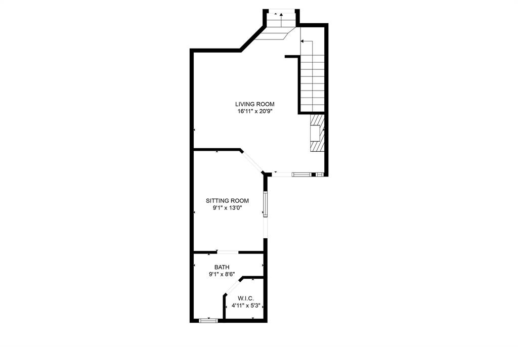
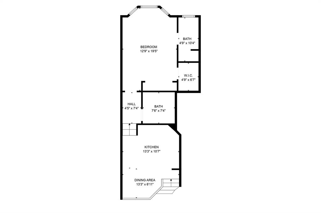
Want a lifestyle where city energy and sophisticated comfort intersect? Welcome to this beautifully designed 2-bedroom, 2.5-bathroom condo in the heart of Uptown Dallas, one of the city’s most walkable and desirable neighborhoods. Thoughtfully crafted with bright, airy spaces, high ceilings, and expansive windows, this condo feels open and inviting, offering stunning cityscape views from every angle. A spacious, modern kitchen—complete with granite countertops, a large island, and a chic wet bar to showcase your favorite bottles—flows effortlessly into a generous living area, ideal for hosting friends or relaxing in style. Two primary suites are strategically placed on opposite ends for privacy, each featuring en-suite baths, large closets, and serene ambiance. Start each morning on your private balcony, taking in poolside views and Uptown’s vibrant scene. This urban retreat also includes a resort-style pool, fitness center, and unbeatable access to everything Dallas has to offer. Leave the car behind—the M-Line Trolley and DART Light Rail are just steps away, putting boutique shopping, award-winning restaurants, and the Katy Trail right at your fingertips. Don’t miss the chance to own this incredible Uptown Dallas condo—your sophisticated, city-centered lifestyle awaits!
Features & Amenities
Interior
-
Other Interior Features
Wet Bar, High Speed Internet
-
Total Bedrooms
2
-
Bathrooms
2
-
1/2 Bathrooms
1
-
Basement YN
NO
-
Cooling YN
YES
-
Cooling
Ceiling Fan(s), Central Air, Electric
-
Fireplace YN
YES
-
Heating YN
YES
-
Heating
Central, Electric
-
Pet friendly
N/A
Exterior
-
Garage
Yes
-
Garage spaces
1
-
Construction Materials
Brick
-
Other Exterior Features
Balcony, Rain Gutters, Lighting, Private Yard
-
Parking
Carport, Garage, Garage Door Opener, Garage Faces Front, Attached
-
Patio and Porch Features
Covered
-
Pool
No
Area & Lot
-
Lot Features
Interior Lot
-
Lot Size(acres)
1.248
-
Property Type
Residential
-
Property Sub Type
Condominium
-
Architectural Style
Split Level
Price
-
Sales Price
$379,000
-
Tax Amount
7279.0
-
Sq. Footage
1, 220
-
Price/SqFt
$310
HOA
-
Association
Yes
-
Association Fee
$590
-
Association Fee Frequency
Monthly
-
Association Fee Includes
N/A
School District
-
Elementary School
Milam
-
Middle School
Spence
-
High School
North Dallas
Property Features
-
Foundation Details
Slab
-
Sewer
Public Sewer
Schedule a Showing
Showing scheduled successfully.
Mortgage calculator
Estimate your monthly mortgage payment, including the principal and interest, property taxes, and HOA. Adjust the values to generate a more accurate rate.
Your payment
Principal and Interest:
$
Property taxes:
$
HOA fees:
$
Total loan payment:
$
Total interest amount:
$
Location
County
Dallas
Elementary School
Milam
Middle School
Spence
High School
North Dallas
Listing Courtesy of Eric Daniels , Caywood Daniels Team, LLC
RealHub Information is provided exclusively for consumers' personal, non-commercial use, and it may not be used for any purpose other than to identify prospective properties consumers may be interested in purchasing. All information deemed reliable but not guaranteed and should be independently verified. All properties are subject to prior sale, change or withdrawal. RealHub website owner shall not be responsible for any typographical errors, misinformation, misprints and shall be held totally harmless.
Office and Team Coordinator
Mhamer Sas
Call Mhamer today to schedule a private showing.
* Listings on this website come from the FMLS IDX Compilation and may be held by brokerage firms other than the owner of this website. The listing brokerage is identified in any listing details. Information is deemed reliable but is not guaranteed. If you believe any FMLS listing contains material that infringes your copyrighted work please click here to review our DMCA policy and learn how to submit a takedown request.© 2024 FMLS.