Features & Amenities

Interior

  • Other Interior Features

    Double Vanity, Granite Counters, Vaulted Ceiling(s), Walk-In Closet(s), Wired for Data, High Speed Internet, Smart Home, Wired for Sound

  • Total Bedrooms

    5

  • Bathrooms

    4

  • Basement YN

    NO

  • Cooling YN

    YES

  • Cooling

    Ceiling Fan(s), Electric, Zoned

  • Fireplace YN

    YES

  • Heating YN

    YES

  • Heating

    Central, Natural Gas, Zoned, Other

  • Pet friendly

    N/A

Exterior

  • Garage

    Yes

  • Garage spaces

    2

  • Construction Materials

    Brick, Fiber Cement

  • Other Exterior Features

    Rain Gutters, Lighting, Private Yard

  • Parking

    Garage Door Opener, Garage Faces Front, Attached

  • Patio and Porch Features

    Covered

  • Pool

    No

  • Waterfront YN

    NO

Area & Lot

  • Lot Features

    Few Trees, Interior Lot, Landscaped, Subdivided

  • Lot Size(acres)

    0.176

  • Property Type

    Residential

  • Property Sub Type

    Single Family Residence

  • Architectural Style

    Traditional

Price

  • Sales Price

    $571,750

  • Sq. Footage

    2, 734

  • Price/SqFt

    $209

HOA

  • Association

    Yes

  • Association Fee

    $400

  • Association Fee Frequency

    Annually

  • Association Fee Includes

    N/A

School District

  • Elementary School

    Parkview

  • Middle School

    Marine Creek

  • High School

    Chisholm Trail

Property Features

  • Foundation Details

    Slab

  • Senior Community YN

    NO

  • Sewer

    Public Sewer

  • Water Source

    Public

Schedule a Showing

Showing scheduled successfully.

<
>
IN PERSON
VIA CHAT

What is 3 + 4 ?


Change time

Mortgage calculator

Estimate your monthly mortgage payment, including the principal and interest, property taxes, and HOA. Adjust the values to generate a more accurate rate.

Your payment

Principal and Interest:

$

Property taxes:

$

HOA fees:

$

Total loan payment:

$

Total interest amount:

$

Location

County

Tarrant

Elementary School

Parkview

Middle School

Marine Creek

High School

Chisholm Trail

Listing Courtesy of Ben Caballero , HomesUSA.com

RealHub Information is provided exclusively for consumers' personal, non-commercial use, and it may not be used for any purpose other than to identify prospective properties consumers may be interested in purchasing. All information deemed reliable but not guaranteed and should be independently verified. All properties are subject to prior sale, change or withdrawal. RealHub website owner shall not be responsible for any typographical errors, misinformation, misprints and shall be held totally harmless.

Agent Joe Boston

AGENT

Joe Boston

Call Joe today to schedule a private showing.


* Listings on this website come from the FMLS IDX Compilation and may be held by brokerage firms other than the owner of this website. The listing brokerage is identified in any listing details. Information is deemed reliable but is not guaranteed. If you believe any FMLS listing contains material that infringes your copyrighted work please click here to review our DMCA policy and learn how to submit a takedown request.© 2024 FMLS.
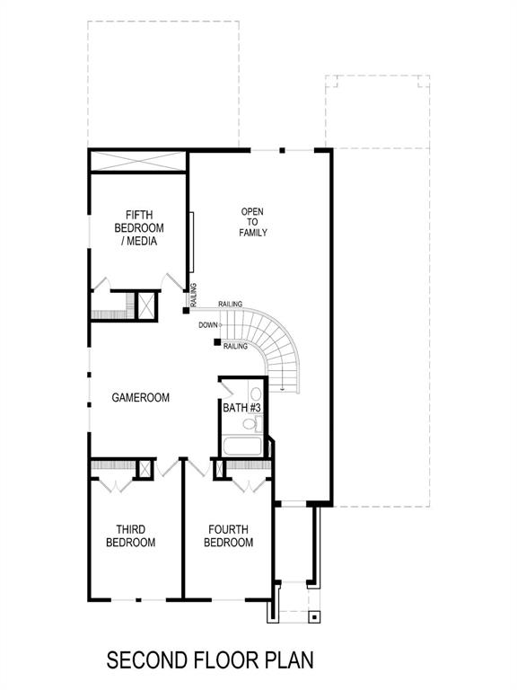
MLS# 20747827 - Built by First Texas Homes - Ready Now! ~ This home features a front porch, covered patio, large back yard and home theater for at-home relaxation and entertainment. A community pool and playground are within walking distance. This home features soaring ceilings, curved stairs and natural light throughout! Double ovens, a 5-burner cooktop, and a large island make this home a chef's delight. Amazing upgrades are planned for this beautiful home!

5208 Deep Creek Drive

Message successfully sent.

What would you like to know?

What is 3 + 4 ?

Related Properties

Welcome to this spacious 2-story home with 5 bedrooms, 3.5 baths, and a 3-car garage, perfectly situated on a corner lot in Live Oak Creek. This welcoming neighborhood is known for its peaceful walks, winding curves, and jogging and bike paths. The home greets you with beautiful landscaping and designer touches, from crown molding to arched doorways. A soaring ceiling in the entryway opens to a bright, bay-windowed formal dining area, while the open floorplan centers around a cozy brick fireplace. The chef’s kitchen is a true highlight, with granite countertops, a breakfast bar, walk-in pantry, and stainless steel appliances. The bedrooms are thoughtfully arranged, with the primary suite and one guest bedroom on the main floor, and three more bedrooms, two baths, and a game room upstairs. The light-filled primary suite offers his-and-hers granite vanities, a garden tub, and a separate shower. Outside, the oversized patio, complete with retracting wind screens, extends your living space. The community offers a pool, park, playground, and jogging and bike paths, all just a short commute to Lockheed Martin, Burger’s Lake, and the best of shopping and dining.
#21177555

Fort Worth

11937 Cisco Court

5 Beds

3 Baths

2,896 Sq.Ft.

$463,500

MLS#: 21177555

NEW! NEVER LIVED IN. May 2026 completion. Bloomfield Homes Dewberry II featuring 4 bedrooms, 3.5 baths, in a spacious two-story layout with thoughtfully selected upgrades throughout. This stunning home begins with an impressive 8 foot front door that welcomes you into a bright, open foyer connecting to a private study, while the front is enhanced by a second-story balcony. RevWood flooring runs throughout the primary living areas, leading into the family room where large windows overlook the backyard and bring in abundant natural light. A wood burning floor to ceiling tile fireplace adds character and definition to the room. The deluxe kitchen is designed for both everyday function, featuring quartz countertops, built-in stainless steel appliances, a trash pull out, LED lighting, and a large island. The primary suite is privately located downstairs and offers a spacious bedroom paired with a garden tub, separate shower, and walk-in closet. Upstairs, 3 secondary bedrooms are near 2 full baths, along with a large game room and dedicated media room that provide comfortable separation from the main level. The front balcony is accessible from the second story, creating an additional outdoor space with elevated views. The extended patio overlooks the backyard, while full rain gutters enhance durability. Additional highlights include 2 inch faux wood blinds throughout and a front-entry 2-car garage. Located in Hulen Trails, residents enjoy access to trails, a soccer field, community pool with bathhouse, dog stations, playground, greenbelts, and a neighborhood park. Call or visit the Bloomfield Homes model at Hulen Trails to learn more!!
#21179381

Fort Worth

4409 Copper Point Drive

4 Beds

3 Baths

3,034 Sq.Ft.

$499,990

MLS#: 21179381

Welcome to 7541 Pondview Lane—an exceptional Highland Home, lovingly maintained by its original owner and nestled in the highly sought-after Tavolo Park community. This stunning single-story home offers 4 spacious bedrooms, 3 full bathrooms, and a private study, perfectly designed for today’s lifestyle. The open-concept floor plan showcases soaring ceilings, abundant natural light, and elegant finishes throughout. At the heart of the home, the gourmet kitchen features granite countertops, a large center island, and generous cabinetry, seamlessly flowing into the inviting living room with a cozy gas fireplace—ideal for both everyday living and entertaining. Step outside to a covered patio overlooking a beautifully landscaped backyard, perfect for relaxing evenings or weekend gatherings. Additional highlights include a two-car garage and energy-efficient construction. Residents of Tavolo Park enjoy resort-style amenities including a community pool, clubhouse, scenic walking trails, playgrounds, and green spaces. Conveniently located with easy access to Chisholm Trail Parkway and downtown Fort Worth, and zoned to Crowley ISD, this home offers comfort, convenience, and community all in one.
#21197295

Fort Worth

7541 Pondview Lane

4 Beds

3 Baths

2,927 Sq.Ft.

$550,000

MLS#: 21197295

Beautifully Renovated 5-Bedroom, 4.5-Bath Home in Prime Keller ISD Location

Located in the highly sought-after Keller ISD, this stunning two-story home has been thoughtfully updated with luxury finishes and a spacious layout perfect for modern living. The light-filled kitchen showcases sleek gray shaker cabinets, brand-new high-end appliances, and opens to a generous living area highlighted by a striking floor-to-ceiling tiled fireplace.

Enjoy the rare convenience of dual master suites—one on each level—offering ultimate flexibility for families, guests, or multi-generational living. With five total bedrooms, a dedicated downstairs office, and an upstairs media room with additional living space, there’s plenty of room to spread out and enjoy.

Additional features include elegant laminate flooring throughout, recessed LED lighting, and a neutral modern palette ready for your personal touch.

Conveniently located near major shopping centers—including HEB, Alliance Town Center, and Presidio Village—this home combines luxury, location, and livability.

Schedule your private showing today—this one won’t last!
#21088401

Fort Worth

10305 Stoneside Trail

5 Beds

4 Baths

3,798 Sq.Ft.

$575,400

MLS#: 21088401

An exceptional opportunity in the highly coveted Walsh Ranch community.
This 3-bedroom, 2.5-bath residence with a 2-car garage offers a rare combination of thoughtful upgrades, generous space, and immediate move-in availability — without the premium and timeline of new construction.
Unlike many newer homes nearby, this property features upgrades that go beyond standard builder selections. The kitchen was updated in 2025 with high-quality finishes and design elements that add both sophistication and function, creating a space that feels intentional and elevated.
The open layout provides comfortable flow for everyday living and entertaining, while the expansive backyard — free from zero lot line constraints — offers space, privacy, and flexibility that is increasingly hard to find in the community.
The home is vacant and ready for a smooth transition. To further enhance the opportunity, the seller is offering $10,000 in concessions, providing flexibility toward closing costs or interest rate strategies.

Walsh Ranch is known for its resort-style amenities, strong sense of community, and access to Aledo ISD. Homes offering this level of finish, yard space, and buyer incentives are limited.

Private tours available by appointment.
#21192461

Fort Worth

2237 Rue Court

3 Beds

2 Baths

2,195 Sq.Ft.

$465,000

MLS#: 21192461

SELLER OFFERING THREE MONTHS of HOA DUES.  Luxury condo offering the lock and leave lifestyle at its best, located within a historic loft setting.  Updated paint, flooring and lighting prior to listing.  Enjoy all the amenities of a traditional highrise in a contemporary fashion – 24-hour concierge, secured door entry and garage, gorgeous rooftop pool and amenity deck featuring multiple cabanas, outdoor kitchen and grilling areas, putting greens, a gym, and media room – even a gated dog run!  Excellent view of the pool from the unit. Target, Tom Thumb and Natural Grocers are right outside the door and you are within literal minutes to Downtown, TCU, the Cultural District, Trinity Trail, the FW Zoo, Botanic Gardens, Dickie’s Arena, the Stockyards...all this and easy access to I-30, I-35, Hwy 121!
#21196890

Fort Worth

2600 W 7th Street 2614

2 Beds

2 Baths

1,546 Sq.Ft.

$499,000

MLS#: 21196890

Price reduced
YOU WILL BE IMPRESSED  FRONT DECORATIVE TALL  METAL DOUBLE DOOR ENTRANCE 7X41 LIVING ROOM OPEN AREA TO DINNING AREA SERVING AREA WITH A WALK IN PANTRY, BUILT IN SHELVES AND DRAWERS KITCHEN: 2 BUILT IN STOVES ONE GAS WITH GLASS VENTHOOD BUILT IN MICROWAVE AND CONVENTIONAL OVEN ISLAND WITH BUILT IN ELECTRIC STOVE WITH VENTHOOD ,VERY STRONG EXTRACTOR, GRANITE TOP AND SEATS ABOUT 6 PEOPLE  BREAKFAST AREA OPEN TO FAMILY ROOM TV SCREEN FOR SURVELLIANCE CAMERAS. ELECTRIC FIREPLACE BEDRROOM WITH BUILT IN DRAWERS  BACK PORCH18X14, ROOM FOR OFFICE OR GYM WITH GLASS FRENCH DOORSUTILITY ROOM WHASER AND DRYER ROOM, BUILT IN CABINETS GARAGE JUST RENOVATED FLOOR WITH PARTIAL SEE TROUGH DOOR WITH CONTROLSTAIRS WITH GLASS SIDE PROTECTIVE LIVING ROOM MASTER BDR WITH FIRE PLACE MASTER BATH LARGE MIRRORS BUILT IN VANITIES A ROUND 5' TUB AND A SHOWER WITH GLASS DOOR' WALK IN CLOSSET 6X14 BUILT IN DRAWERS, ENCLOSED TOILET MEDIA ROOM 3 BEDRROMS WITH BUILT IN DRAWERS CEILING FANS WITH CONTROL, 2 FULL BATHROOMS WITH GLASS DOOR SHOWERS, HALLWAY LINENS CLOSET AND A DROP IN DIRTY CLOTHES SHOOT TO THE LAUNDRYROOM, HARWOOD FLOORS IN SECOND FLOOR  DECORATIVE LIGTHS  INSIDE AND OUTSIDE ENEERGY SAVER THERMOSTAT AND MUCH MORE A MUST SEE
#21117516

Fort Worth

500 FLOWERING PLUM Lane 1

5 Beds

4 Baths

4,488 Sq.Ft.

$590,000

MLS#: 21117516

This fully renovated, move-in-ready home sits in the highly rated Keller ISD within a desirable neighborhood featuring great HOA amenities. Renovated by top-rated 323 Construction, the home offers a bright, open floorplan with tall ceilings, spacious rooms, walk-in closets in every bedroom, a media room and walk-in attic. Updates include new flooring, full interior and exterior paint, upgraded fixtures and hardware, refreshed kitchen and bathrooms (including a semi-frameless master shower and a fully renovated upstairs bath), and renewed landscaping. Major systems add peace of mind, including a roof replaced 5–7 years ago, a 2018 water heater, and no history of foundation issues. This home delivers quality, comfort, and confidence in a sought-after community.
#21123540

Fort Worth

3257 Button Bush Drive

4 Beds

2 Baths

3,009 Sq.Ft.

$469,500

MLS#: 21123540

Prepare to be amazed—this pristine 1.5-story home at 2216 Rosalinda Pass in Fort Worth, Texas, truly stands out among the rest! Impeccably maintained and thoughtfully upgraded by the current owners, every corner of this residence exudes quality  and attention to detail.
 
Featuring four bedrooms, three of which—including the luxurious primary suite—are conveniently located on the main floor. The upper level offers a versatile space that serves as a second primary suite complete with a full bath, perfect for guests or multi-generational living. Alternatively, it can function as a game room or media room. The upstairs area has its own heating and cooling system, allowing you to save energy by turning it off when not in use or keeping it at the perfect temperature for  guests.
 
The open-concept design boasts a spacious eat-in kitchen that seamlessly flows into the living area, creating an ideal space for entertaining. Adjacent to the kitchen, a butler’s pantry and formal dining room make hosting gatherings effortless. The inviting primary suite on the main floor includes a custom cabinet system that’s a must-see.
 
Even the garage impresses with epoxy-coated floors, an advanced garage door opener, and custom lighting—making it a dream workspace.
 
Outdoors, the upgrades continue to shine. Recent additions include a brand-new in-ground pool, a covered patio, and a fully-equipped outdoor kitchen—perfect for enjoying Texas evenings. A custom GemStone lighting system enhances both the front and back yards, while hardwired security cameras offer peace of mind.
 
With over $150,000 in upgrades, this home is truly move-in ready and set to impress. Located in a desirable Fort Worth neighborhood with easy access to local amenities, schools, and parks, it offers the perfect blend of style, function, and comfort.
 
Don’t miss out on this exceptional opportunity—schedule your private tour today!
#21131625

Fort Worth

2216 Rosalinda Pass

4 Beds

3 Baths

2,801 Sq.Ft.

$574,900

MLS#: 21131625

Modern Elegance & Masterful Craftsmanship - Step into a world of sophisticated design with this stunning 2-bedroom plus office, 2.5-bathroom residence. Every detail of this home has been meticulously curated, offering a better than new feel that seamlessly blends luxury with everyday functionality. Architectural Detail & Living Spaces - The open-concept floor plan is anchored by soaring ceilings and magnificent custom ceiling beams that add a sense of warmth and grandeur to the main living area. For those who work from home, the dedicated private office offers a quiet, professional sanctuary tucked away from the main flow of the house. Chef’s Dream Kitchen - The heart of the home is a true masterpiece. Featuring custom kitchen cabinetry that provides both elegance and ample storage, the space is beautifully complemented by pristine, high-end quartz countertops. Whether you’re hosting a dinner party or enjoying a quiet morning coffee, this kitchen is as functional as it is beautiful. Spa-Inspired Retreats - Relaxation is redefined in the primary suite. The ensuite bathroom is a designer showstopper, featuring a walk-in shower with floor-to-ceiling marble-inspired tiling, a custom pebble-stone floor, and a built-in bench. Throughout the home, you'll find 2.5 beautifully appointed bathrooms with modern fixtures, integrated quartz sinks, and premium contemporary finishes. Key Property Highlights: Versatile Layout: 2 spacious bedrooms plus a private office. Premium Finishes: Custom beams, designer lighting, and high-end hardware. Gourmet Excellence: Custom cabinets and durable quartz surfaces. Turn-Key Luxury: Meticulously maintained with a crisp, neutral color palette throughout. This property is a rare find that combines timeless architectural interest with the most sought-after modern conveniences.
#21201434

Fort Worth

7717 Murcia Drive

2 Beds

2 Baths

2,338 Sq.Ft.

$659,000

MLS#: 21201434

 - property

Send a message

Message successfully sent.

Your message

What is 3 + 4 ?

Reason for contacting?

Sign Out

Virtual Assistant

Would you like to take the next step with this property? We can help you schedule a showing or virtual tour, or send you more details.

Yes, I would like more information.

Thank You for Your Reply, One of Our Agents will contact you as soon as possible

No, maybe later.

Thank you, you can always contact me via email, phone number or through the contact form.

Realhub AI

Lucy - Your AI-Powered Realtor

Update Your Temporary Password

Personalize your search

Enter your email and we'll notify you immediately when new listings match what you're looking for.

or enter email address

Already have an account ? Login here

Continue your home search

Already have an account ? Login here

We use cookies

We use cookies primarily for analytics to enhance your experience. By accepting, you agree to our use of these cookies. You can manage your preferences or learn more about our cookies policy.